Casa Chicxulub
Esta casa para vacaciones largas de sus propietarios, amantes de la vida y los deportes al aire libre, fue creada para ese fin: una casa para ellos, sus hijos, nietos y amigos que les permitiera gozar la calma y los azules del mar y los protegiera de las grises nubes cargadas de agua y vientos acarreadores de la fina arena de la playa. Otro factor determinante de este proyecto fue el refrescante palmar mezclado con uvas de mar que con mucho respeto y cuidado habían preservado.
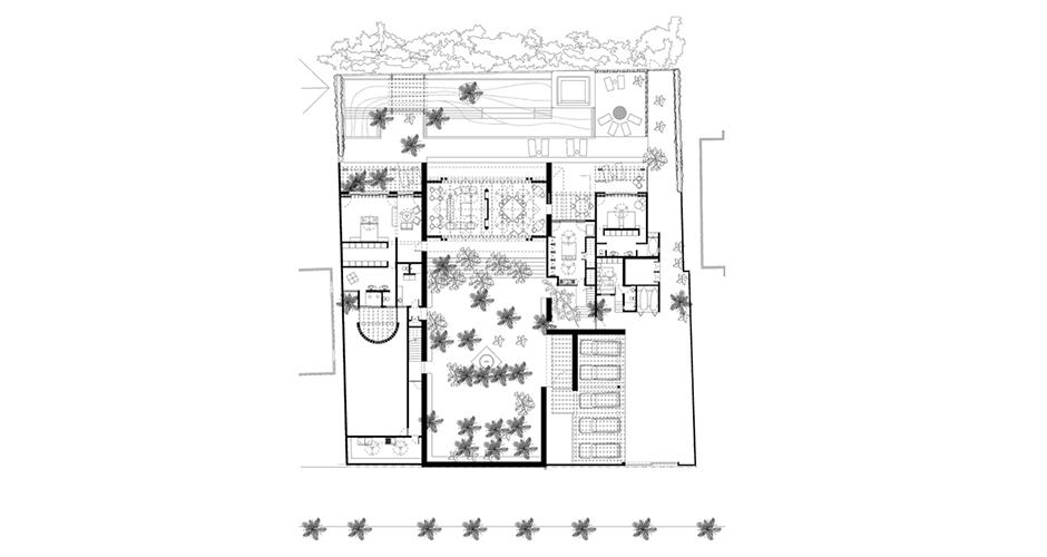
El patio, palmar y arena, recibe y vestibula las áreas públicas de la casa, pero a su vez es la extensión de éstas, que lo conectan con el frente de mar, permitiendo así un espacio de convivencia con variados ambientes y una continuidad visual.
Las habitaciones situadas en los flancos del patio y resueltas en dos niveles proporcionan la total vista del mar y permiten el estar en privacidad.

Detalles del Proyecto
- Chicxulub,
Yucatán, México - 2007